Properties

Property Description

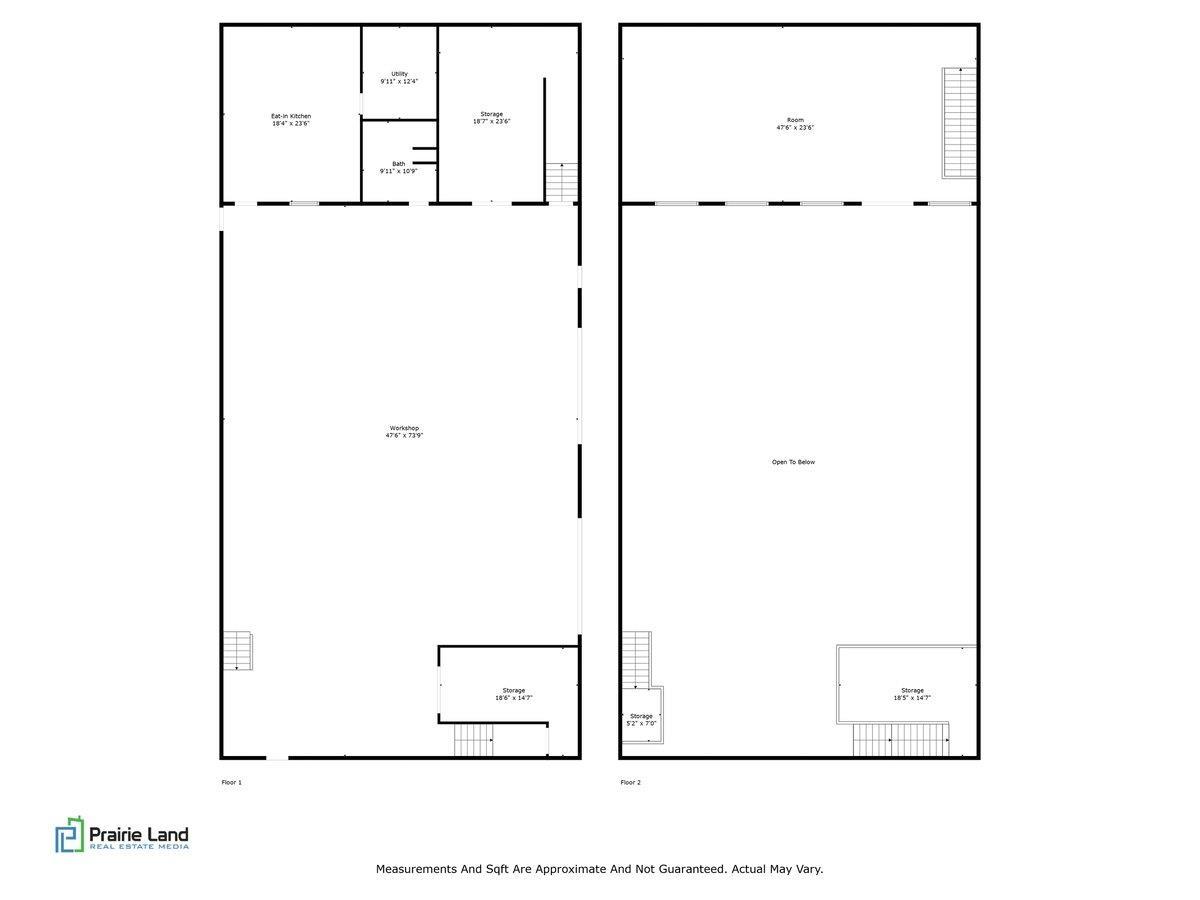
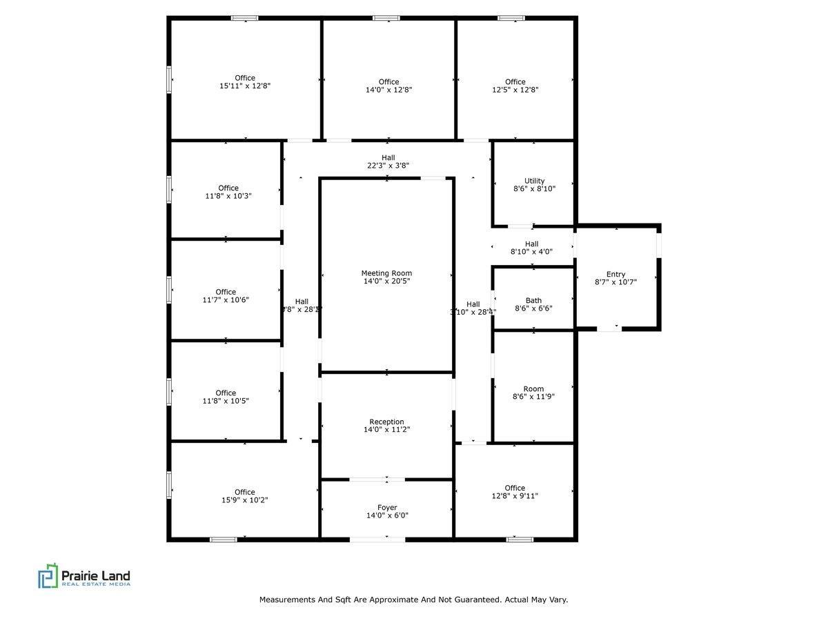
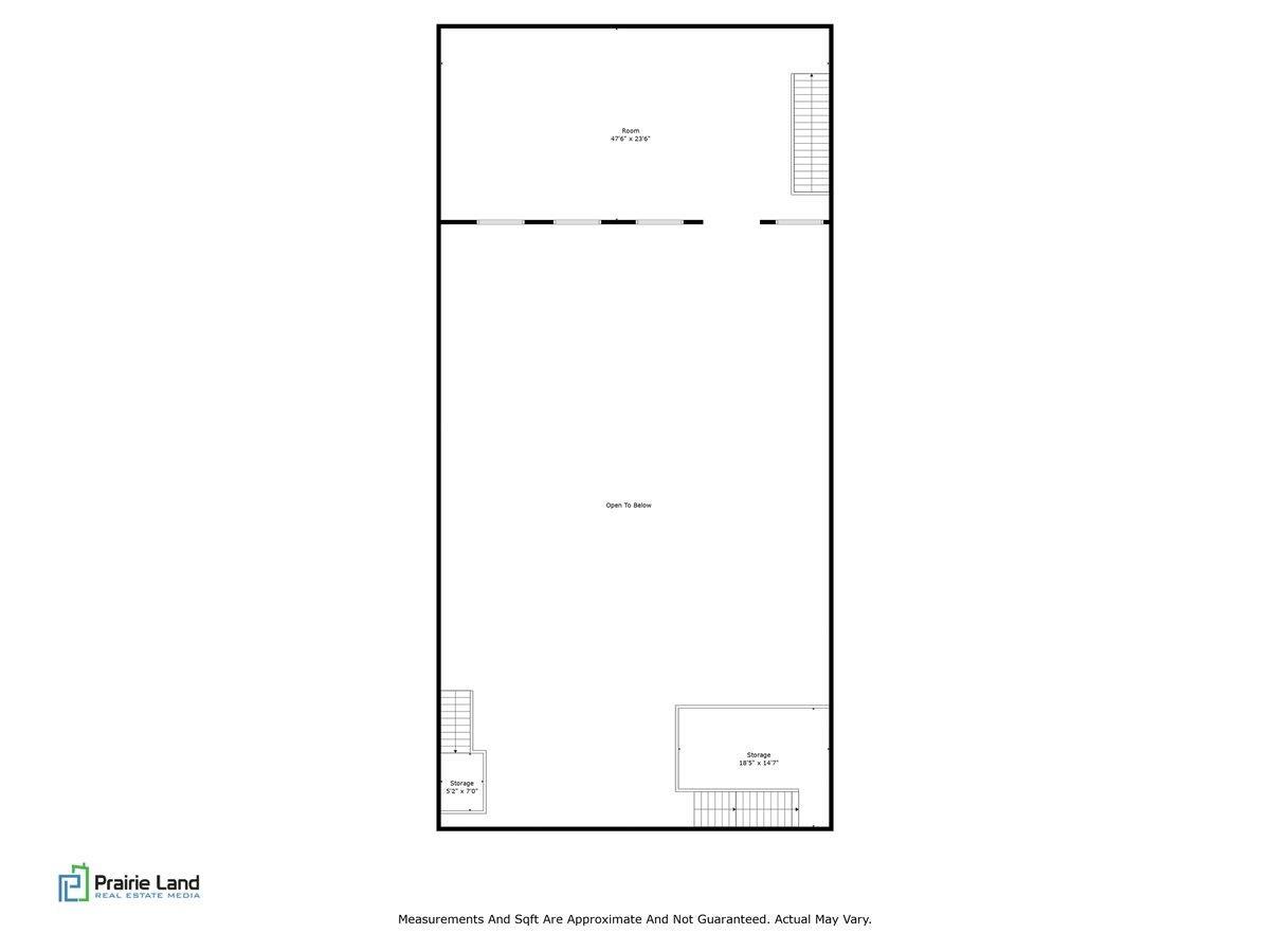
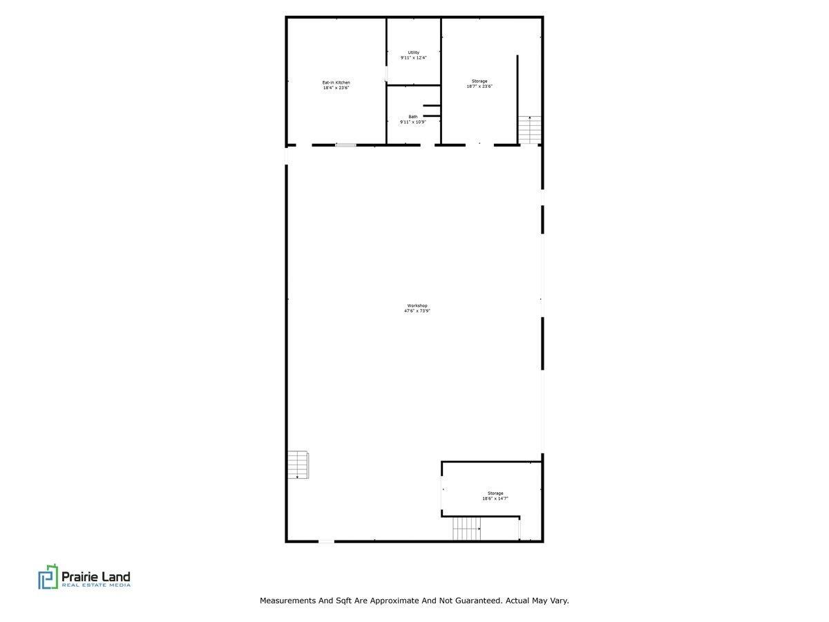
This is a rare opportunity to acquire or lease one of the most versatile & irreplaceable industrial properties in Central Illinois, positioned just off I-72 & Route 36 in Riverton, immediately outside Springfield. The site functions as one of the first & last full-service commercial stops when entering or leaving Springfield for more than 30 miles, making it exceptionally strategic for logistics, fleet operations, & service-based businesses. Surrounded by established national & regional users including TA Express, SIC Recycling, & Dollar General, the property sits within a proven commercial district offering strong traffic, infrastructure, & long-term stability. The location provides secure, hidden-from-public-view ground, ideal for vehicle repossession operations, controlled access uses, fleet staging, & secure storage. This property is well suited for a wide range of users including construction & general contractor firms, industrial storage & yard use, trucking & towing companies, large fleet & logistics operators (ABF-type carriers), equipment rental/service businesses (Sunbelt-style operations, Caterpillar, Bobcat), metal fabrication, landscaping companies, seed/fertilizer suppliers, lumber/building material sales, energy & solar companies, telecom & data infrastructure, IT or data-center support, security companies, food delivery/ retail supply distribution, municipal, city, state, or government storage & operations. Potential eligibility for Commercial TIF incentive.

Features
: Forced Air, Natural Gas
: Central Air
: Metal
: 30
: Carpet, Wood, Tile, Concrete, Reinforced Concrete
C2
Address Map
US
IL
Sangamon
Riverton
Overpass
2675
Road
0
W90° 28' 33.2''
N39° 50' 20.4''
Interstate 72/36 take Riveron exit left at Overpass Road left into Riverton Interstate Park follow lane to the warehouse
1
MLS Addon
The Real Estate Group, Inc.
Melissa
Grady
$0
: Brick, Frame, Steel Frame
195
: One, Other
RMACA5124
RMACA2050
Active
15150276010
: Public Sewer
$9,693
2024
missy@thegroup.com

Commercial Sale For Sale

2675 Overpass Road, Riverton, Illinois

7 Acre
$3,200,000
Listing ID #RMACA1037767
Basic Details
Property Type : Commercial Sale
Listing Type : For Sale
Listing ID : RMACA1037767
Price : $3,200,000
Year Built : 2017
Lot Size : 7 Acre
Property Sub Type : Commercial
Standard Status : Active
Agent info
Gateway Realty Group
Contact Agent