Properties

Property Description

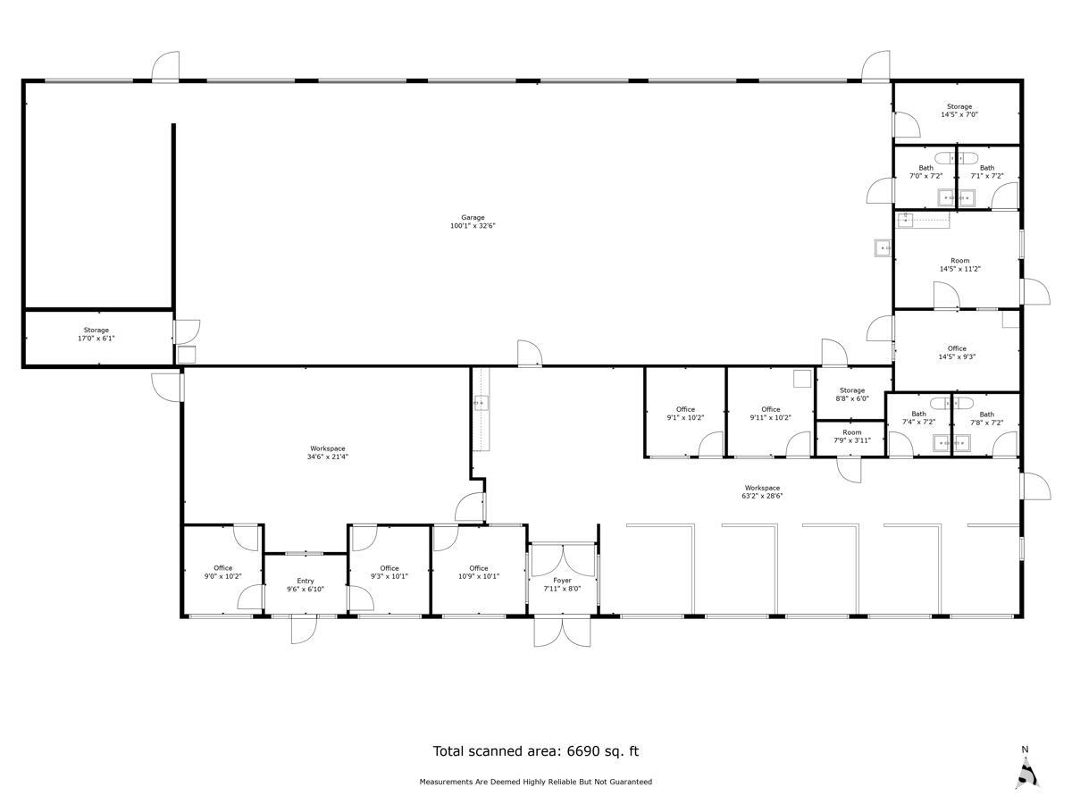
This car dealership, sales and service center is available for immediate lease or is also for sale. It provides high visibility and traffic counts on Pioneer Parkway with easy access to North Peoria, Dunlap, Route 6, I-74 and several other Peoria car dealerships. This net (NNN) lease has a base rent of $8,500 per month with tenants directly paying real estate taxes, building insurance policy and maintenance and repairs. The sales center side includes 5 private offices, 5 semi-private offices, foyer, lobby with coffee bar, open work area (suitable for 4 cubicles), 2 ADA compliant restrooms, and storage. The service center side includes 7 bays, each with 10’x10′ overhead doors and floor drains, with 6 bays having auto lifts, as well as a shop restroom, electric room and utility room. The service center also has a separate entrance, lobby with ADA compliant restroom, and service office. There are well lit parking lots around the building with 85+ spaces. This property is located in the Peoria Urban Enterprise Zone Amendment #8.

Features
: Radiant Ceiling, Forced Air, Natural Gas
: Central Air, None, Office Only
: Flat
: Carpet, Tile, Concrete
C-2
Address Map
US
IL
Peoria
Peoria
PIONEER
1613
Parkway
0
W90° 22' 56.4''
N40° 47' 2.1''
Pioneer Parkway
W
MLS Addon
RE/MAX Traders Unlimited
Justin
Ball
$0
: Block, Other, Frame, Aluminum Siding, Ornamental Block, Steel Frame
7
: One, Free Standing, Single Tenant
RMAPAP1009398
RMAPAPRMAX
Active
14-05-353-010
: Public Sewer
$28,379
2022
justinashbyball@gmail.com

Commercial Lease For Rent

1613 PIONEER Parkway, Peoria, Illinois

0 Acre
$0
Listing ID #RMAPA1265153
Basic Details
Property Type : Commercial Lease
Listing Type : For Rent
Listing ID : RMAPA1265153
Price : $0
Lot Size : 0 Acre
Lot Size Dimensions : 300' x 325'
Property Sub Type : Commercial
Standard Status : Active
Agent info
Gateway Realty Group
Contact Agent